Download
Sluiten

Voer uw gegevens in om de brochure te ontvangen

Dit veld is verborgen bij het bekijken van het formulier
Dit veld is verborgen bij het bekijken van het formulier
Download

CONTACTFORMULIER

Geen titel(Vereist)
Hoofdfoto
Beschikbaar

Rozenplein 45, ede

Koopprijs € 429.500,00 K.K.
Bekijk alle media

Omschrijving

Op een uitstekende locatie in het levendige buurtwinkelcentrum het Rozenplein in Ede bieden wij een langjarig verhuurd winkelpand aan. De winkel bevindt zich in de directe nabijheid van populaire winkels zoals de Albert Heijn, een groenteboer en een bloemwinkel, wat bijdraagt aan de aantrekkingskracht van de locatie.
Daarnaast biedt het winkelcentrum volop gratis parkeergelegenheid direct voor de deur, waardoor het gemakkelijk bereikbaar is voor klanten.

Met een stabiele langjarige huurder biedt dit pand een interessante kans voor de belegger. Mis deze kans niet om te investeren in een winkelruimte op een centrale plek in Ede!

Adres:
Rozenplein 45 te Ede.

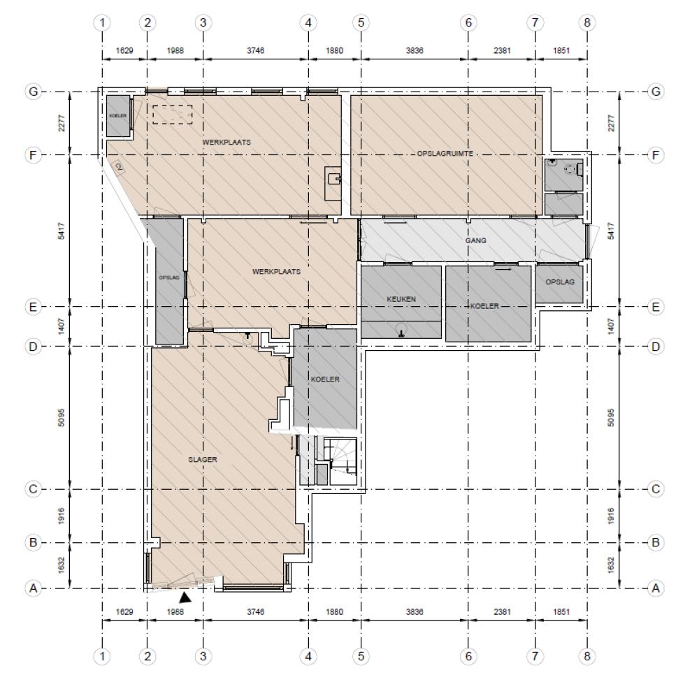
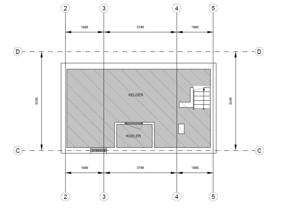
Oppervlakte:
Begane grond: ca. 187 m².
Kelder: ca. 28,9 m².

Huurder:
Keurslagerij Jongenotter.

Huurprijs:
€ 39.047,90 per jaar vrij van btw.

Expiratiedatum:
De huidige huurperiode loopt tot en met 31-12-2028.

Verlenging:
5 jaar.

Indexatie:
Jaarlijks op 1 januari en de eerst volgende keer op 1 januari 2026.

Parkeren:
Gratis parkeren voor de deur.

Bereikbaarheid:
Zeer goed bereikbaar met zowel de auto, de fiets en de bus.

Koopprijs:
€ 429.500,– k.k.

VVE:
De winkelruimte maakt onderdeel uit van een VVE waar een maandelijkse vergoeding voor verschuldigd is. De maandelijkse bijdrage is op dit moment € 87,50 per maand.

Verkoopvoorwaarden:
As is.

Aanvaarding:
In overleg.

Interesse?
Heeft u na het zien van de beelden en het lezen van de informatie verdere vragen of interesse? Neem dan gerust contact met ons op. Wij helpen u graag.

Het bovenstaande behelst geen aanbod doch slechts vrijblijvende en globale informatie met betrekking tot het daarbij genoemde onroerend goed. Wij kunnen niet instaan voor de juistheid of volledigheid van deze gegevens.

Interesse?
Heeft u na het zien van de beelden en het lezen van de informatie verdere vragen of interesse? Neem dan gerust contact met ons op. Wij helpen u graag.

Het bovenstaande behelst geen aanbod doch slechts vrijblijvende en globale informatie met betrekking tot het daarbij genoemde onroerend goed. Wij kunnen niet instaan voor de juistheid of volledigheid van deze gegevens.

Lees volledige omschrijving Inklappen
Object image
Object image
Object image
Object image
Object image
Object image
Object image
Object image
Object image
Object image
Object image
Object image
Object image
Locatie Ede
Type Belegging
Oppervlakte 216 m²
Koopprijs € 429.500,00 K.K.

Kenmerken

Overdracht
Status Beschikbaar
Aanvaarding In overleg
Bouw
Hoofdfunctie Belegging
Soort bouw Bestaande bouw
Neem contact op
Kaart
Kadastraal
Satelliet

Specialist in bedrijfshuisvesting

ActiVast is gespecialiseerd in bedrijfsmatig vastgoed.  Van klein tot groot, voor ons geen verschil. Door onze ervaring, marktkennis en onze pro actieve houding zijn wij de juiste partij voor alle vraagstukken omtrent uw vastgoed. We zijn zowel landelijk actief als specifiek in de regio Ede, Wageningen en Veenendaal.

Meer over ons
Bedrijfshuisvesting & Vastgoedbeleggingen
Terug
Object image
Object image
Object image
Object image
Object image
Object image
Object image
Object image
Object image
Object image
Object image
Object image
Object image
Terug
Object image
Object image
Object image
Object image
Object image
Object image
Object image
Object image
Object image
Object image
Object image
Object image
Object image
Bekijk alle media
Rozenplein 45 EDE 6713 EN