Download
Sluiten

Voer uw gegevens in om de brochure te ontvangen

Dit veld is verborgen bij het bekijken van het formulier
Dit veld is verborgen bij het bekijken van het formulier
Download

CONTACTFORMULIER

Geen titel(Vereist)
Hoofdfoto
Beschikbaar

Hakselseweg 19-K, ede

Koopprijs € 549.500,00 V.O.N.
Bekijk alle media

Omschrijving

Aan de rand van het kleinschalige bedrijventerrein ‘De Klaphek’ wordt momenteel een prachtig project gerealiseerd bestaande uit hoogwaardige en duurzame woon-/werkunits die beschikken over een balkon en eigen parkeergelegenheid.

In dit project komt een compleet afgebouwde unit beschikbaar (de foto’s geven de huidige stand van de afbouw weer. Deze wordt op dit moment geheel afgerond en compleet opgeleverd). Beneden uw werk en boven een prachtige ruime woning met maar liefst twee balkons. In de tijd waarin woningen schaars zijn, is dit een uitgelezen kans voor ondernemers die op zoek zijn naar een instapklare woning in combinatie met een bedrijfsruimte.

Adres:
Hakselseweg 19-K te Ede.

Oppervlakte:
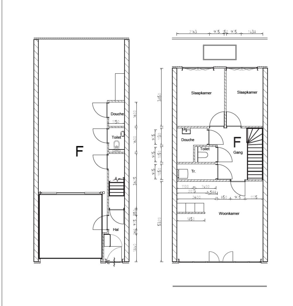
Begane grond: ca. 80 m²
Verdieping: ca. 70 m²
Balkon voorzijde: ca. 8,5 m²
Balkon achterzijde: ca. 11 m²

Opleveringsniveau:
Het pand zal turn-key opgeleverd worden en zal onder andere voorzien zijn van:
Begane grond:
– overheaddeur;
– loopdeur;
– meterkast;
– vaste trap naar verdieping;
– toilet;
– douche;
– pantry.

Verdieping:
– ruime woonkamer;
– keuken met inbouwapparatuur;
– badkamer met wastafel en douche;
– zwevend toilet;
– 2 slaapkamers;
– gestukte wanden en plafonds;
– warmtepomp.

Parkeren:
De unit beschikt over drie eigen parkeerplaatsen.

Bereikbaarheid:
Bedrijventerrein “De Klaphek” is zowel met eigen vervoer als ook met het openbaar vervoer goed bereikbaar. Het bedrijventerrein is gelegen nabij het centrum en de op- en afritten van de Rijkswegen A-12 en A-30 welke aansluit op de Rijksweg A-1.

Vereniging van Eigenaren:
Om de kwaliteit te waarborgen zal er een vve worden opgericht waar eigenaren automatisch lid van worden.

Koopvoorwaarden:
Prijs:
€ 549.500,- (v.o.n. excl. BTW en excl. notariskosten.)

Koopovereenkomst:
Wanneer u het pand wenst aan te kopen dan zullen wij de koopovereenkomst opstellen en de notaris zal de leveringsakte opstellen.

Zekerheidsstelling:
Bankgarantie of waarborgsom ter grootte van 10% van de koopsom, af te geven bij of te storten op de rekening van het notariskantoor.

Notariskantoor:
Nader te bepalen.

Baten en Lasten:
Alle baten, lasten en verschuldigde canons, waaronder begrepen heffingen die voortvloeien uit de akte van splitsing en/of reglement (indien van toepassing) komen voor rekening van de kopende partij vanaf de datum van notarieel transport. De lopende baten, lasten en dergelijke, met uitzonder van de onroerende zaakbelasting wegens feitelijk gebruik, zullen tussen partijen naar rato worden verrekend.

Bijzonderheden:
Eventuele aansluitkosten voor elektra/water komen voor rekening van de koper.

Interesse?
Heeft u na het zien van de beelden en het lezen van de informatie verdere vragen of interesse? Neem dan gerust contact met ons op. Wij helpen u graag.

Het bovenstaande behelst geen aanbod doch slechts vrijblijvende en globale informatie met betrekking tot het daarbij genoemde onroerend goed. Wij kunnen niet instaan voor de juistheid of volledigheid van deze gegevens.

Interesse?
Heeft u na het zien van de beelden en het lezen van de informatie verdere vragen of interesse? Neem dan gerust contact met ons op. Wij helpen u graag.

Het bovenstaande behelst geen aanbod doch slechts vrijblijvende en globale informatie met betrekking tot het daarbij genoemde onroerend goed. Wij kunnen niet instaan voor de juistheid of volledigheid van deze gegevens.

Lees volledige omschrijving Inklappen
Object image
Object image
Object image
Object image
Object image
Object image
Object image
Object image
Object image
Object image
Object image
Object image
Object image
Object image
Object image
Object image
Object image
Locatie Ede
Type Bedrijfsruimte
Oppervlakte 153 m²
Koopprijs € 549.500,00

Kenmerken

Overdracht
Status Beschikbaar
Aanvaarding In overleg
Bouw
Hoofdfunctie Bedrijfsruimte
Soort bouw Bestaande bouw
Neem contact op
Kaart
Kadastraal
Satelliet

Specialist in bedrijfshuisvesting

ActiVast is gespecialiseerd in bedrijfsmatig vastgoed.  Van klein tot groot, voor ons geen verschil. Door onze ervaring, marktkennis en onze pro actieve houding zijn wij de juiste partij voor alle vraagstukken omtrent uw vastgoed. We zijn zowel landelijk actief als specifiek in de regio Ede, Wageningen en Veenendaal.

Meer over ons
Bedrijfshuisvesting & Vastgoedbeleggingen
Terug
Object image
Object image
Object image
Object image
Object image
Object image
Object image
Object image
Object image
Object image
Object image
Object image
Object image
Object image
Object image
Object image
Object image
Terug
Object image
Object image
Object image
Object image
Object image
Object image
Object image
Object image
Object image
Object image
Object image
Object image
Object image
Object image
Object image
Object image
Object image
Bekijk alle media
Hakselseweg 19 EDE 6713 KT