Download
Sluiten

Voer uw gegevens in om de brochure te ontvangen

Dit veld is verborgen bij het bekijken van het formulier
Dit veld is verborgen bij het bekijken van het formulier
Download

CONTACTFORMULIER

Geen titel(Vereist)
Hoofdfoto
Beschikbaar

Parkweg 2, ede

Huurprijs € 2.500,00 /mnd
Bekijk alle media

Omschrijving

Te huur commerciële ruimte op toplocatie nabij station Ede-Wageningen.

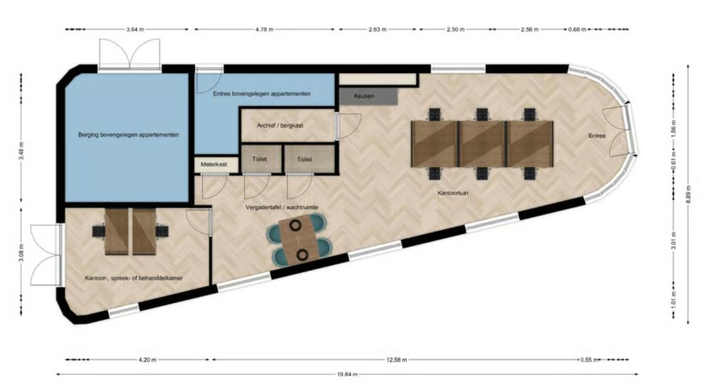
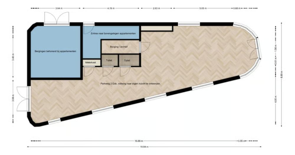
Aan de kop van de Parkweg in Ede-Zuid bieden wij deze multifunctionele nieuwbouw commerciële ruimte van circa 85 m² aan. De oplevering staat gepland voor het tweede kwartaal van 2026. De ruimte maakt deel uit van een kleinschalig, modern nieuwbouwproject.

Adres:
Parkweg 2 te Ede.

Oppervlakte:
Ca. 85 m² op de begane grond.

Opleveringsniveau:
– Dubbele toiletgroep luxe afgewerkt met marmeren tegel.
– Pantryblok voorzien van vaatwasser en inbouwkoelkast
– Koeling en verwarming doormiddel van airco’s
– Volledig gestukadoord
– Openslaande toegangsdeuren voor en achter
– Verlichtingsrails naar ontwerp huurder
– Energielabel A++
– Inclusief 7 zonnepanelen op het platdak van het complex.

Afbouw in overleg met huurder.
Vanwege de brede gebruiksmogelijkheden zijn er tal van inrichtingen te ontwerpen. In de advertentie zijn een aantal voorbeelden daarvan opgenomen.

Eventuele scheidingswanden, kamers, deuren en glaswanden worden in overleg met de huurder en in samenspraak met onze architect ontwerpen en voor rekening van verhuurder aangebracht.

Bestemming:
Met een zeer brede bestemming is Parkweg 2 geschikt voor detailhandel, kantoor, winkel en ook maatschappelijke doeleinden.

Ligging en bereikbaarheid:
Deze ruimte bevindt zich in Ede-Zuid, een levendige wijk met een mix van wonen, werken en voorzieningen. Door de ligging nabij het station en de goede ontsluiting richting de A12 is dit een aantrekkelijke plek voor ondernemers die zichtbaarheid én bereikbaarheid zoeken.

Terras:
Aan de achterzijde, aangrenzend aan het parkje beschikt het pand over een eigen terras voor Horeca doeleinden. Begin april start de gemeente Ede met verdere inrichting van de Parkweg waaronder het straatwerk rondom Parkweg 2, de afronding van het park en de groenaanleg.

Huurvoorwaarden:
Huurprijs:
€ 2.500,- per maand, te vermeerderen met BTW.

Servicekosten:
€ 100,– per maand, te vermeerderen met BTW.

Huurtermijn:
Een huurovereenkomst met een eerste huurperiode van vijf jaar met aansluitende (optie)perioden van telkens vijf jaar.

Opzegtermijn:
De standaard opzegtermijn bij een huurovereenkomst van vijf jaar bedraagt twaalf maanden voor de expiratiedatum van de huurovereenkomst.

Betaling:
Huurgelden inclusief btw en servicekosten dienen per maand vooruit voldaan te worden.

Zekerheidstelling:
Huurder dient een bankgarantie of waarborgsom te stellen ter grootte van 3 maanden huur inclusief btw en servicekosten.

Indexering:
De huurprijs zal jaarlijks worden geïndexeerd, voor het eerst een jaar na de huuringangsdatum, op basis van het Consumenten prijs indexcijfer CPI.

Huurovereenkomst:
De huurovereenkomst zal worden opgesteld op basis van een standaard ROZ huurovereenkomst.

Interesse?
Heeft u na het zien van de beelden en het lezen van de informatie verdere vragen of interesse? Neem dan gerust contact met ons op. Wij helpen u graag.

Het bovenstaande behelst geen aanbod doch slechts vrijblijvende en globale informatie met betrekking tot het daarbij genoemde onroerend goed. Wij kunnen niet instaan voor de juistheid of volledigheid van deze gegevens.

Interesse?
Heeft u na het zien van de beelden en het lezen van de informatie verdere vragen of interesse? Neem dan gerust contact met ons op. Wij helpen u graag.

Het bovenstaande behelst geen aanbod doch slechts vrijblijvende en globale informatie met betrekking tot het daarbij genoemde onroerend goed. Wij kunnen niet instaan voor de juistheid of volledigheid van deze gegevens.

Lees volledige omschrijving Inklappen
Object image
Object image
Object image
Object image
Object image
Object image
Object image
Object image
Object image
Object image
Object image
Object image
Object image
Locatie Ede
Type Kantoorruimte
Oppervlakte 85 m²
Huurprijs € 2.500,00 /mnd

Kenmerken

Overdracht
Servicekosten € 100,00 per maand incl. BTW
Status Beschikbaar
Aanvaarding In overleg
Bouw
Hoofdfunctie Kantoorruimte
Soort bouw Bestaande bouw
Neem contact op
Kaart
Kadastraal
Satelliet

Specialist in bedrijfshuisvesting

ActiVast is gespecialiseerd in bedrijfsmatig vastgoed.  Van klein tot groot, voor ons geen verschil. Door onze ervaring, marktkennis en onze pro actieve houding zijn wij de juiste partij voor alle vraagstukken omtrent uw vastgoed. We zijn zowel landelijk actief als specifiek in de regio Ede, Wageningen en Veenendaal.

Meer over ons
Bedrijfshuisvesting & Vastgoedbeleggingen
Terug
Object image
Object image
Object image
Object image
Object image
Object image
Object image
Object image
Object image
Object image
Object image
Object image
Object image
Terug
Object image
Object image
Object image
Object image
Object image
Object image
Object image
Object image
Object image
Object image
Object image
Object image
Object image
Bekijk alle media
Parkweg 2 EDE 6717 HT