Download
Sluiten

Voer uw gegevens in om de brochure te ontvangen

Dit veld is verborgen bij het bekijken van het formulier
Dit veld is verborgen bij het bekijken van het formulier
Download

CONTACTFORMULIER

Geen titel(Vereist)
Hoofdfoto
Beschikbaar

Rondweg 88, wezep

Huurprijs € 189.500,00 /jr
Koopprijs Op aanvraag
Bekijk plattegrond Bekijk alle media

Omschrijving

Prachtig vrijstaand kantoorgebouw gelegen op een perfecte zichtlocatie met de Rondweg van Wezep aan de voorzijde en de Rijksweg A-28 aan de achterzijde. Het pand bestaat uit ca. 1.500 m² kantoorruimte en ca. 150 m² bedrijfs-opslagruimte separaat op het achterterrein met tevens ruime parkeervoorzieningen.

Het pand heeft een mooie uitstraling, is gebouwd met hoogwaardige materialen en bevindt zich in een goede staat van onderhoud. In 2016 heeft een volledige renovatie plaatsgevonden waarbij onder andere nagenoeg het hele pand is voorzien van airconditioning. De energieprestatie is met een Label A+ goed te noemen.

Omdat het pand is gelegen op een ruime kavel met uiteenlopende bestemmingsmogelijkheden biedt het vele mogelijkheden; kantoor, belegging, herontwikkeling enzovoorts.

Adres:
Rondweg 88 te Wezep.

Oppervlakte:
Begane grond : 1.105 m2 VVO
Eerste etage : 338 m2 VVO
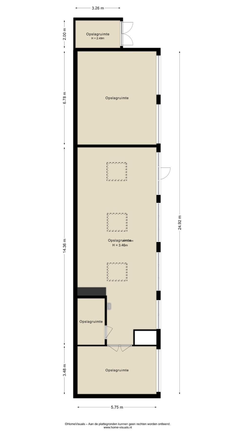
Bedrijfsruimte/Opslag : 149 m2 VVO
Totaal : 1.642 m2 VVO

De achterzijde van het pand is desgewenst om te bouwen naar ca. 500 m² bedrijfsruimte.

Opleveringsniveau:
Het pand is onder andere voorzien van:
– Professionele bedrijfskantine;
– Terras;
– Ruime kantoren;;
– Balie;
– Natuurstenen vloer in de entree;
– Lift;
– Douche;
– Diverse vergaderzalen;
– Spuitplaats voor auto’s;
– Bedrijfsruimte met 3 overheaddeuren;
– Airconditioning;
– Led-verlichting;
– Binnentuin.

Locatie:
De locatie aan Rondweg 88 in Wezep kenmerkt zich door een centrale en goed bereikbare ligging. Dankzij de directe aansluiting op de A28 (Zwolle–Amersfoort) en de N308 (Elburg–Hattem) is het pand uitstekend ontsloten richting de regio en de rest van Nederland. Binnen 7 minuten is Zwolle te bereiken en ook met het openbaar vervoer is de locatie goed bereikbaar. Het NS-station Wezep ligt op korte afstand en is binnen enkele minuten per fiets of auto te bereiken. Daarnaast zijn er regelmatige busverbindingen met het station en de omliggende plaatsen. De combinatie van een strategische ligging, goede bereikbaarheid en ruime parkeermogelijkheden maakt dit een aantrekkelijke locatie voor bedrijven en organisaties die centraal en goed bereikbaar willen vestigen.

Bijzonderheden:
De locatie leent zich ook bijzonder goed voor herontwikkeling of gehele nieuwbouw. Neem contact met ons op voor de mogelijkheden.

Koopprijs:
Op aanvraag.

Huurvoorwaarden:
Huurprijs:
€ 189.500,- per jaar exclusief btw.

Servicekosten en energie:
Huurder dient zelf overeenkomsten aan te gaan met de betreffende leveranciers.

Huurtermijn:
Een huurovereenkomst met een eerste huurperiode van vijf jaar met aansluitende (optie)perioden van telkens vijf jaar. Kortere huurtermijnen in overleg.

Opzegtermijn:
De standaard opzegtermijn bij een huurovereenkomst van vijf jaar bedraagt twaalf maanden voor de expiratiedatum van de huurovereenkomst.

Betaling:
Huurgelden inclusief btw en servicekosten dienen per maand vooruit voldaan te worden.

Zekerheidstelling:
Huurder dient een bankgarantie of waarborgsom te stellen ter grootte van 3 maanden huur inclusief btw en servicekosten.

Indexering:
De huurprijs zal jaarlijks worden geïndexeerd, voor het eerst een jaar na de huuringangsdatum, op basis van het Consumenten prijs indexcijfer CPI.

Huurovereenkomst:
De huurovereenkomst zal worden opgesteld op basis van een standaard ROZ huurovereenkomst.

Interesse?
Heeft u na het zien van de beelden en het lezen van de informatie verdere vragen of interesse? Neem dan gerust contact met ons op. Wij helpen u graag.

Het bovenstaande behelst geen aanbod doch slechts vrijblijvende en globale informatie met betrekking tot het daarbij genoemde onroerend goed. Wij kunnen niet instaan voor de juistheid of volledigheid van deze gegevens.

Interesse?
Heeft u na het zien van de beelden en het lezen van de informatie verdere vragen of interesse? Neem dan gerust contact met ons op. Wij helpen u graag.

Het bovenstaande behelst geen aanbod doch slechts vrijblijvende en globale informatie met betrekking tot het daarbij genoemde onroerend goed. Wij kunnen niet instaan voor de juistheid of volledigheid van deze gegevens.

Lees volledige omschrijving Inklappen
Object image
Object image
Object image
Object image
Object image
Object image
Object image
Object image
Object image
Object image
Object image
Object image
Object image
Object image
Object image
Object image
Object image
Object image
Object image
Object image
Object image
Object image
Object image
Object image
Object image
Object image
Object image
Object image
Object image
Object image
Object image
Object image
Object image
Object image
Object image
Object image
Object image
Object image
Locatie Wezep
Type Kantoorruimte, Bedrijfsruimte, Bouwgrond, Belegging
Oppervlakte 1443 m²
Huurprijs € 189.500,00 /jr
Koopprijs Op aanvraag

Kenmerken

Overdracht
Status Beschikbaar
Aanvaarding In overleg
Bouw
Hoofdfunctie Kantoorruimte
Mogelijk functie(s) Bedrijfsruimte, Bouwgrond, Belegging
Soort bouw Bestaande bouw
Neem contact op
Kaart
Kadastraal
Satelliet

Specialist in bedrijfshuisvesting

ActiVast is gespecialiseerd in bedrijfsmatig vastgoed.  Van klein tot groot, voor ons geen verschil. Door onze ervaring, marktkennis en onze pro actieve houding zijn wij de juiste partij voor alle vraagstukken omtrent uw vastgoed. We zijn zowel landelijk actief als specifiek in de regio Ede, Wageningen en Veenendaal.

Meer over ons
Bedrijfshuisvesting & Vastgoedbeleggingen
Terug
Object image
Object image
Object image
Object image
Object image
Object image
Object image
Object image
Object image
Object image
Object image
Object image
Object image
Object image
Object image
Object image
Object image
Object image
Object image
Object image
Object image
Object image
Object image
Object image
Object image
Object image
Object image
Object image
Object image
Object image
Object image
Object image
Object image
Object image
Object image
Object image
Object image
Object image
Terug
Object image
Object image
Object image
Object image
Object image
Object image
Object image
Object image
Object image
Object image
Object image
Object image
Object image
Object image
Object image
Object image
Object image
Object image
Object image
Object image
Object image
Object image
Object image
Object image
Object image
Object image
Object image
Object image
Object image
Object image
Object image
Object image
Object image
Object image
Object image
Object image
Object image
Object image
Bekijk alle media
Rondweg 88 WEZEP 8091 XK